
quin
san luis potosí, mexico
program
industrial building, administrative offices & exterior works
area
8,750 m²
year of design
2015-2016
location
san luis potosí, mexico
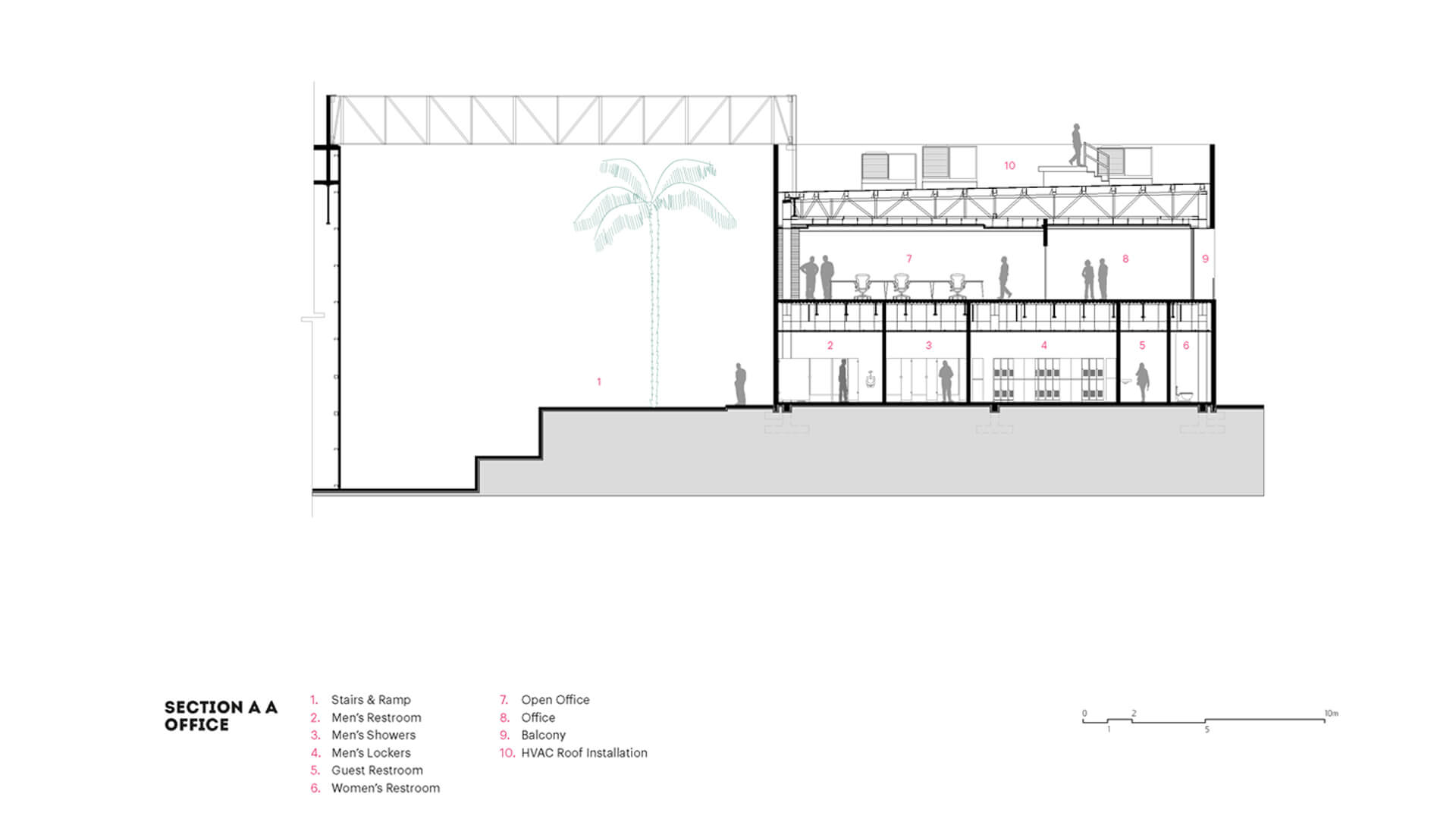
designed in 2015 and erected in 2016 in the city of san luis potosí, the quin automotive plant consists of an industrial plant, administrative building, parking lot and enveloping green areas. the design prioritizes current operational-industrial processes, while providing for future growth of the company. the architectural approach is sober, contemporary and monumental, while ensuring every space respects the human scale of company personnel. the first phase, recently finished, consists of the industrial nave, administrative building, areas for exterior machinery and community zones furnished with attractive stairways and benches where the employees can socialize and enjoy the outdoors. providing a contemporary, identifiable signature of the industrial purpose of the project, a saw-tooth roof protects the stairways and creates a foyer connecting the two main areas. a green belt surrounds the several buildings, serving as a buffer zone between the plant and urban environs. In line with the company’s corporate image, the interior is simple and clean, relying on polished concrete floors and custom wood furnishings.


reception view


reception view






credits & colaborations
thanks a lot of our friends / team:
moritz melchert
director /
josé moreno
constructor supervisor /
joaquín miranda
constructor supervisor /
rené cruz
executive project manager /
moritz bernoully
photography